Выбрать город Владимир Выбрать город
Почта
Напишите нам!
Телефон
Бесплатно по России
Телеграм
WhatsApp

Тройниковое ответвление ППУ в Владимире

Тройниковое ответвление ППУ в Владимире с доставкой от завода-производителя. Альфа-тех Инвест выпускает ответвления для создания отводов от основной магистрали. Доступны модели с различными углами и диаметрами присоединения. Изготавливаем в ПЭ и оцинкованной оболочке, с системой контроля.

Гарантируем соответствие нормативам и высокое качество. Работаем с заказами любого объема. Доступные цены. Доставка во все регионы. Получить консультацию или купить тройниковое ответвление по цене от производителя: 8 (800) 700-43-11.

ООО Альфа-тех Инвест с 2004 года обширно и плодотворно работает в России, странах СНГ, ближнего и дальнего зарубежья. Имеет представительства и во многих городах и приветствует вас на нашем сайте. ООО Альфа-тех Инвест занимается производством и поставкой труб ППУ и фасонных изделий в ППУ изоляции и других составляющих. С 2006 года было организовано собственное производство. Соблюдение норм и ГОСТов, новые технологии и постоянный контроль на всех этапах являются гарантией нашей высококачественной продукции.

Тройниковое ответвление ППУ
Тройниковое ответвление ППУ

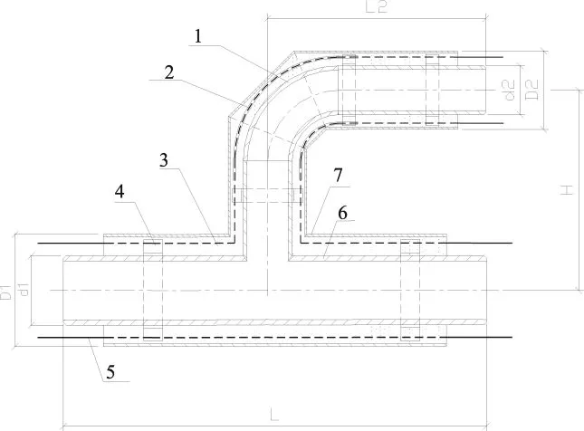
Описание:

Пример условного обозначения тройникового ответвления диаметром 426 – 219 мм с изоляцией типа 1

Условные обозначения:

  1. стальной отвод;
  2. оболочка;
  3. проводник-индикатор системы ОДК;
  4. изоляция из пенополиуретана;
  5. электроизоляционная трубка (для труб со стальной оболочкой;
  6. центрирующая опора.
Получить каталог
трубы ППУ, фасонные изделия, комплектующие, многогранные опоры и металлоконструкции

Подробнее о конструкции и цене тройниковых ответвлений ППУ

Тройниковое ответвление — фасонный элемент, предназначенный для соединения труб между собой и распределения потока внутреннего вещества в несколько направлений. Изготавливается в заводских условиях или непосредственно на месте установки. Поэтому, цена на тройниковое ответвление ППУ напрямую зависит от спецификации. Бывают стандартного исполнения и усиленного. Основная разница в толщине полиуретанового слоя.

d1, мм D1, мм d2, мм Условный диаметр воздушника, мм L, мм
32 125 125 25 1200
38 125 125 25 1200
45 125 125 25 1200
57 140 125 32 1200
76 160 125 32 1300
89 180 125 32 1300
108 200 125 32 1300
133 225 125 32 1300
159 250 125 32 1400
219 315 125 32 1400
273 400 125 32 1800
325 450 125 32 1800
426 560 125 32 1900
530 675 160 50 2000
630 775 160 50 2000
720 875 160 50 2000
820 975 160 50 2000
920 1075 160 50 2100
1020 1175 160 50 2100
1220 1375 160 50 2100
1420 1575 160 50 2100

Бывают следующих видов:

  • тройниковое ответвление ППУ ПЭ – защищающая верхняя оболочка состоит из полиэтилена (ПЭ). В большинстве случаев, применяется для подземного использования, так как защищающая оболочка максимально сохраняет тепло и менее подвержена механическим воздействиям.
  • тройниковое ответвление ППП ОЦ - защищающая верхняя оболочка элемента состоит из оцинкованной стали (ОЦ). Применяется, как правило, на открытых трассах, так как оцинкованный слой позволяет более стойко переносить механические повреждения и влагу.

ООО Альфа-тех Инвест организовала и наладила производство не только труб, но и следующих фасонных изделий:

  • переходы – предназначены для того, чтобы соединить между собой трубные магистрали различных диаметров.
  • z-образные элементы – служат естественным компенсирующим элементом на участках трассы. Также позволяет обойти препятствия. Может устанавливаться в горизонтальном и вертикальном положениях.
  • п-образные элементы – тоже служат элементом, выполняющим функцию по естественной компенсации. Позволяет обойти препятствия и элементы трубопроводов, появившиеся на пути.

На нашем сайте вы легко можете купить тройники ППУ, и другие фасонные изделия по цене от производителя. Вам достаточно связаться с нами через сайт или по телефону: 8 (800) 700-43-11.

Реализованные проекты

Труба в ППУ-изоляции
Труба в ППУ-изоляции

Произведена прокладка и успешно запущены в работу трубопроводы в ППУ-изоляции на АЗС Магистраль М-7 Волга 846 км.

Трубы ППУ в изоляции
Трубы ППУ в изоляции

Произведена прокладка и успешно запущены в работу трубопроводы в ППУ-изоляции в Казань, ул.Горького, д.10

Трубопровод в ППУ-изоляции
Трубопровод в ППУ-изоляции

Произведена прокладка и успешно запущены в работу трубопроводы в ППУ-изоляции в Казань, ул.Галактионова, д.3А

Трубы в ППУ-изоляции
Трубы в ППУ-изоляции

 Произведена прокладка и успешно запущены в работу трубопроводы в ППУ-изоляции в Казань, ул.Зеленая, д.1

Труба ППУ
Труба ППУ

Произведена прокладка и успешно запущены в работу трубопроводы в ППУ-изоляции в Казань, ул.Лесгафта, д. 24-2

Трубопровод ППУ
Трубопровод ППУ

Произведена прокладка и успешно запущены в работу трубопроводы в ППУ-изоляции в Казань, ул.Вишневского, д.51-3

Прокладка трубопровода
Прокладка трубопровода

Произведена прокладка и успешно запущены в работу трубопроводы в ППУ-изоляции в Казань, ул.Тополевая, д.8

Прокладка трубопровода ППУ
Прокладка трубопровода ППУ

Произведена прокладка и успешно запущены в работу трубопроводы в ППУ-изоляции  в г. Казань, ул.Миля д.63А

Прокладка трубопровода ППУ- изоляции
Прокладка трубопровода ППУ- изоляции

Произведена прокладка и успешно запущены в работу трубопроводы в ППУ-изоляции в г.Уфа, пр.Дружбы народов, стройка около д.53

Прокладка трубопровода
Прокладка трубопровода

 Произведена прокладка и успешно запущены в работу трубопроводы в ППУ-изоляции в г.Набережные Челны пр.Набережночелнинский, д.19

Трубопровод ППУ-изоляции
Трубопровод ППУ-изоляции

Произведена прокладка и успешно запущены в работу трубопроводы в ППУ-изоляции в г.Набережные Челны, ЖК Красные Челны пос. 3ЯБ Комсомольский р-н

Купить тройниковое ответвление ППУ в Владимире

Наш завод предлагает купить тройниковое ответвление ППУ на оптимальных условиях. На сайте вы можете ознакомиться с широким ассортиментом, подобрать все необходимое для реализации вашего проекта. Если вам требуется дополнительная информация: 

Напишите нам!
Бесплатно по России
Вопросы и ответы
На каких условиях оплаты вы работаете?
Открыть/Закрыть
Стандартные условия — предоплата 100%. Для постоянных клиентов и крупных серийных заказов условия обсуждаются индивидуально.
Какие сроки изготовления вашей продукции?
Открыть/Закрыть
Сроки изготовления определяются индивидуально для каждого заказа. В среднем это от 5 до 14 рабочих дней.
Можете ли вы организовать доставку продукции до клиента?
Открыть/Закрыть
Мы сотрудничаем с множеством логистических компаний. Наши менеджеры рассчитают стоимость продукции с доставкой в любой регион России. В коммерческое предложение входит расчет веса, объема и необходимого количества транспорта. Вы также можете самостоятельно организовать доставку.
Можно ли приехать на ваш завод на ознакомительную экскурсию?
Открыть/Закрыть
Да, мы приглашаем потенциальных клиентов на экскурсию. Вы сможете ознакомиться с нашим производством и увидеть процесс изготовления интересующей вас продукции. Наш завод находится по адресу: Казань, ул. Михаила Миля, 53а.
Есть ли гарантия на вашу продукцию, и сколько она составляет?
Открыть/Закрыть
Мы предоставляем гарантию на производимую продукцию сроком до 30 лет.
Какие документы качества вы выдаете на производимую продукцию?
Открыть/Закрыть
На каждую партию отгружаемой продукции мы выдаем сертификат качества и паспорт.
WhatsApp Телеграм Телефон
Архангельская Область
Архангельск
Астраханская Область
Астрахань
Башкортостан Республика
Уфа
Владимирская Область
Владимир
Волгоградская Область
Волгоград
Воронежская Область
Воронеж
Кировская область
Киров
Кировская Область
Киров
Коми Республика
Сыктывкар
Костромская Область
Кострома
Красноярский Край
Красноярск
Ленинградская Область
Санкт-Петербург
Мордовия Республика
Саранск
Нижегородская Область
Нижний Новгород
Новосибирская Область
Новосибирск
Омская Область
Омск
Пензенская Область
Пенза
Пермский Край
Пермь
Ростовская Область
Ростов-на-Дону
Рязанская Область
Рязань
Самарская Область
СамараТольятти
Саратовская Область
БалаковоСаратов
Свердловская Область
Екатеринбург
Тамбовская Область
Тамбов
Тверская Область
Тверь
Тюменская Область
Тюмень
Удмуртская Республика
Ижевск
Ульяновская Область
Ульяновск
Ханты-Мансийский Автономный округ - Югра Автономный округ
Сургут
Челябинская Область
Челябинск
Чувашская Республика - Чувашия
Чебоксары
Ярославская Область
Рыбинск
Наверх